Available Properties

Browse through a list of our active listings.  If you don't see something that interests you, give us a call so that we can help you locate the perfect property for your needs!

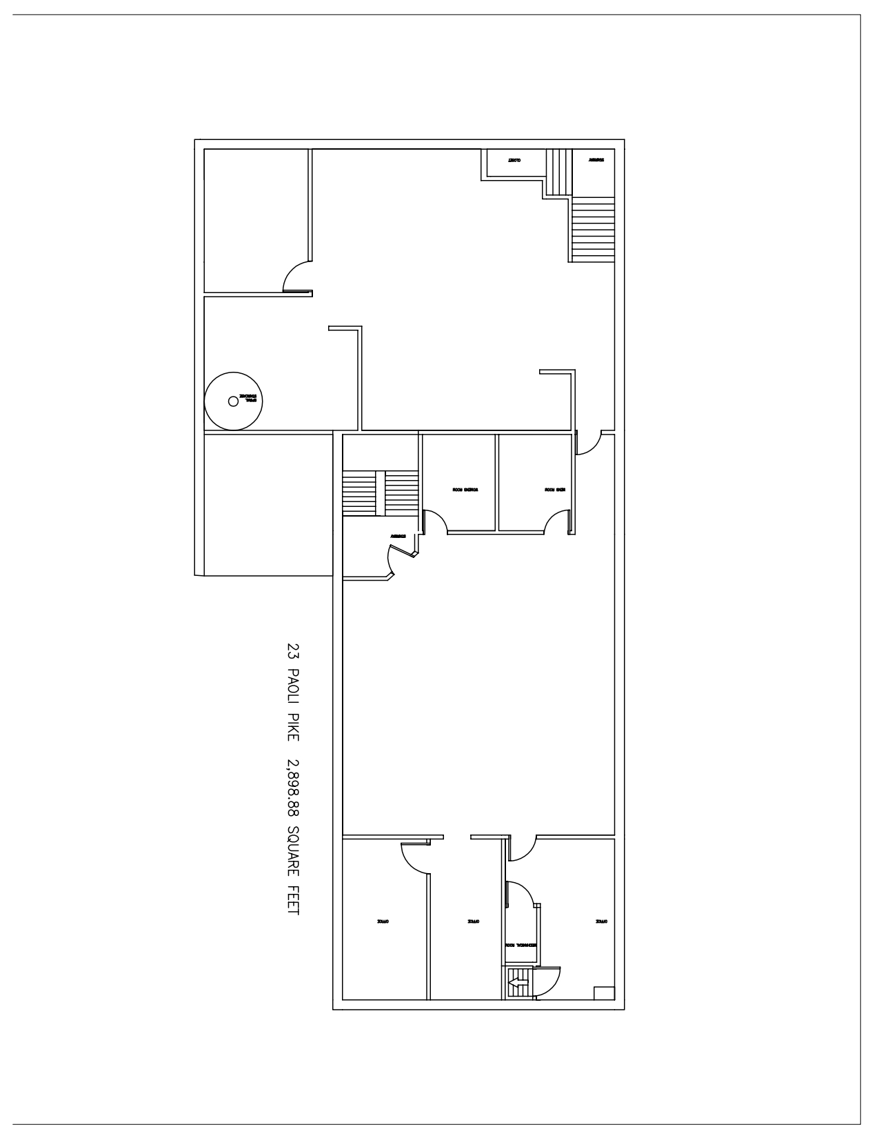
23 Paoli Pike


Paoli, PA 19301







Download Property Details



Description


1st Floor Front 825 s/f $20.00 psf / $1,375.00 per mo. 

reception area, conference room and large open area

 

1st Floor Rear 315 s/f $20.00 psf / $525 per mo.

 

Entire Second Floor Available 2,500 s/f $15.00 psf  / $3,125.00 per mo.

Commercial / Professional / Creative Space
All Inclusive Rental!
Signage available on Paoli Pike &  Plenty of off-street parking
Excellent Transportation Access - SEPTA Regional Rail (Paoli/Thorndale Line), direct access to Philadelphia
Part of the Main Line suburbs higher average income, strong home values, & customers w/ disposable income
Paoli Business & Professional Association -networking opportunities, promotional support & community events

Location


Inquire about this property

Mortgage Calculator

Powered By www.MortgageCalculator.net