Available Properties

Browse through a list of our active listings.  If you don't see something that interests you, give us a call so that we can help you locate the perfect property for your needs!

676 W. Germantown Pike


676 West Germantown Pike, Plymouth Meeting, PA 19462







Download Property Details



Description


virtual tour - https://www.youtube.com/watch?v=cKMuYsEEe8k

Sale $1,280,000.00  /  Lease $20.00 psf or $5,820.00 mo.

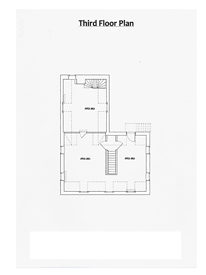
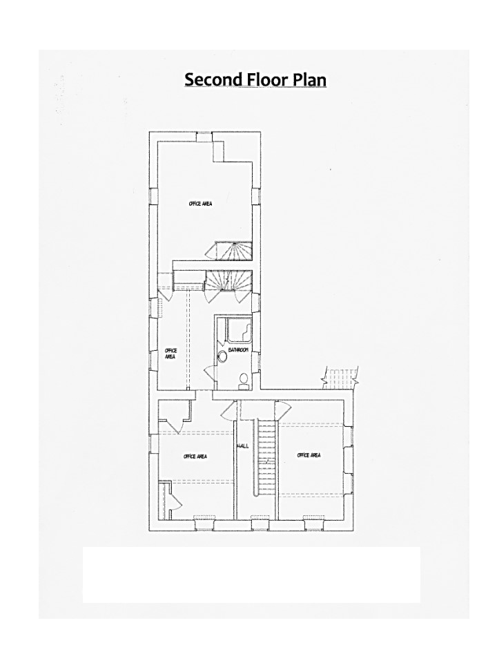
Free Standing 3 Story 3,492 Square Foot Commercial Building on 43,200 S/F Lot (.99 Acres)

Over $350,000 in professional, architecture-designed and township-approved engineering improvements made in 2016 to allow for professional office use.

ØExtraordinary visibility on Germantown Pike, 36K Vehicles AADT (Avg. Annual Traffic )
ØUnparalleled Accessibility of Major Highway Arteries at Mid-County Interchange where the PA                                   Turnpike (I-276) crosses the Northeast Extension/Blue Route (I-476) - less than a ½ mile away
ØBuilt in 1755, totally renovated in 2020, Several private offices, kitchen and 1 ½ baths
Ø17 Sq. Ft. Illuminated sign approved.  16 Vehicle Parking spaces in lot
ØNew Electric, New HVAC, New paint, New ceilings, New plumbing, ADA-compliant. Fenced in Yard
ØWalk to Stores (right next to Plymouth Meeting Mall) Banks and Restaurants
ØBus Lines to The Norristown Transportation Center (21 minute ride)

Details


Price: $ 1,280,000

Location


Inquire about this property

Mortgage Calculator

Powered By www.MortgageCalculator.net